全球网点
圣蒂斯堡|新女性浪漫主义
日期:2022-02-11
|
3998

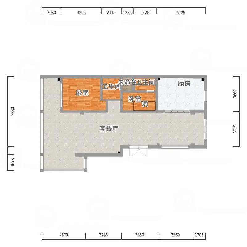
本案的设计整体风格以现代风格为主。主要以浅灰色的柜门搭配上深色的柜体,显得沉稳大气。 女业主是一位具有独立个性的气质女性,具有艺术家气质,闲暇时喜欢品酒闻香,所以我们对风格的定位是新女性浪漫主义。

 

玄关

玄关是人们入户第一眼就看到的区域,温馨明亮的玄关,让人在进门的那一刻就能卸下疲惫,感受家带给我们的舒适与安稳。

 

客厅

窗外的阳光使得客厅空间更加明亮宽敞。电视墙精致的线条设计,令空间更具层次感。亮眼的爱马仕橙,搭配个性的抽象挂画又让整个墙面更加丰富。活力与沉稳融合,给平凡而枯燥的生活增添些许希望与美好。

 

餐厅

餐厅的设计,细腻的质感在静谧氛围中,诠释令人心动的优雅品质。业主偶尔邀请朋友过来家里做客,三五好友边聊边做菜,也许这就是生活美好的样子。

厨房

厨房的设计不仅使空间利用率直线飙升,还能留出空间给业主适配各种厨房家电,增强厨房的兼容性。

在厨房,酝酿着的便是一种生活的温度,一个家的温度。

书房

书柜以虚实结合的体块感呈现,疏密不一,相异的色调在横纵间碰撞交错,演绎灵动随性之美,踱入书房,这一隅是阅读、办公最好的场所。

 

主卧

合理利用空间,这样主卧便集卧室、衣帽间为一体,居住舒适度大大提升。营造了一个舒适度满满的私密空间。

 

次卧

次卧浅灰色的背景墙时尚又内敛,入目尽显舒适的视觉感,为了避免过于单调,特意搭配了与整体保持一致的拼色窗帘,作为空间色彩的点缀。

 

儿童房

莫兰迪色系被称为是最温柔的颜色,不鲜亮,仿佛蒙了一层灰调,却能在整个场景中,相互影响、互相冲减,让视觉达到美丽平衡的效果。平和自持、舒缓雅致,有时略显冷静的感觉,却让人越看越能心生喜欢。

 

本案主要以暖色调为主题,白色柜门搭配浅色柜体,没有过多的线条,看起来纯净柔和,散发着温暖的气息,精心装点的空间,给人的非同寻常的感觉。

 

 

<返回列表
分享